Helper Oostsingel 75 , GRONINGEN

€ 275.000 kosten koper

In de geliefde wijk Helpman bevindt zich deze sfeervolle schipperswoning uit 1920. Een karakteristieke woning met een prettige ligging, op korte afstand van alle dagelijkse voorzieningen. Winkels, scholen, openbaar vervoer en het centrum van Groningen zijn snel en eenvoudig bereikbaar.

De woning telt twee slaapruimtes en kent een praktische indeling. Zowel de woonkamer als de keuken zijn voorzien van een laminaatvloer. Daarnaast biedt de woning volop mogelijkheden om het wooncomfort verder te optimaliseren en op het gebied van verduurzaming stappen te zetten, passend bij de woonwensen van deze tijd.

INDELING

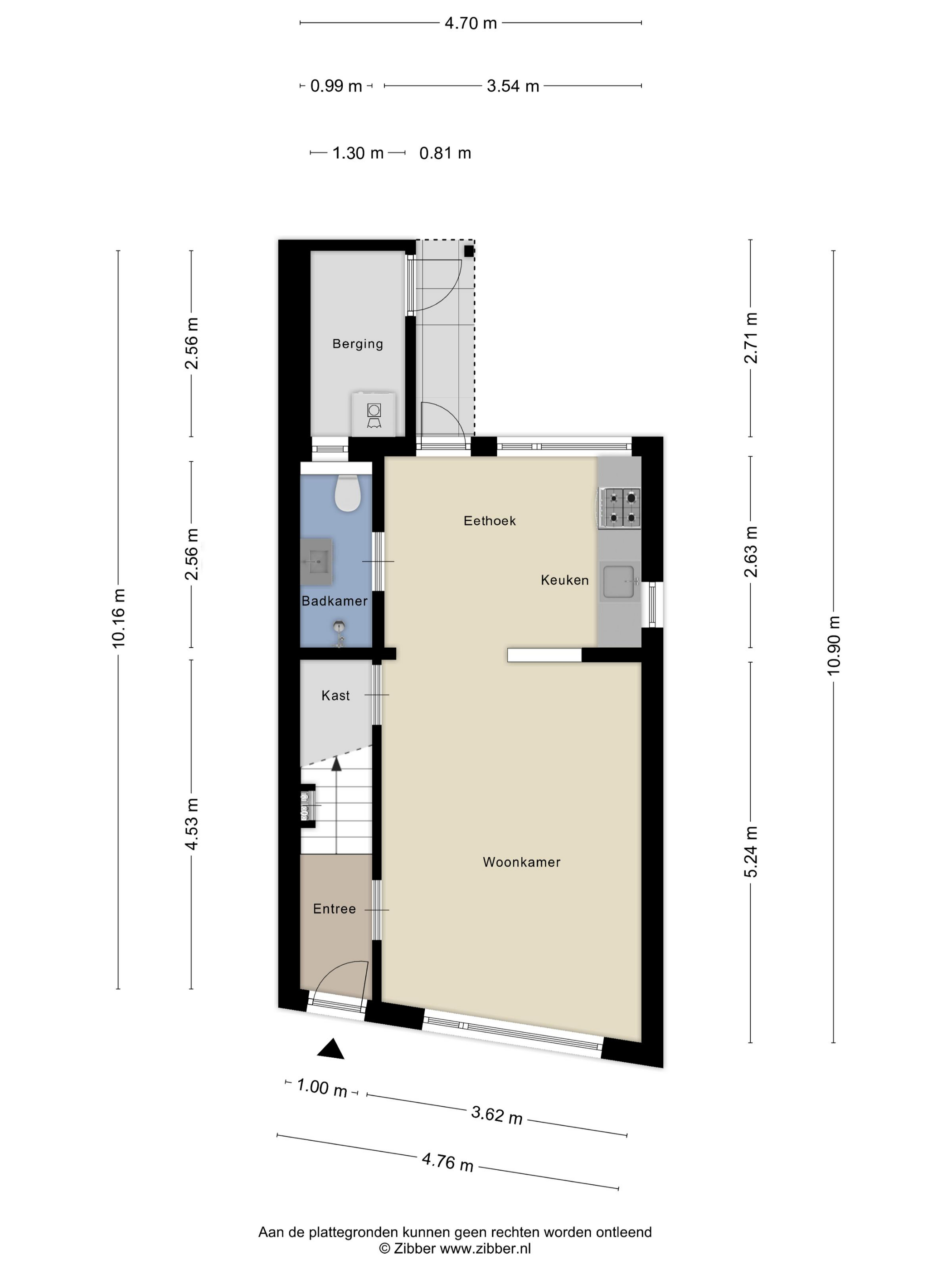
Begane grond:

Via de entree kom je in de hal die toegang biedt tot de lichte woonkamer van circa 20 m², voorzien van een praktische inbouwkast. De keuken van circa 15 m² is uitgerust met een keukenblok en diverse inbouwapparatuur, waaronder een 4-pits kookplaat, Whirlpool combimagnetron, afzuigkap en koeler. Vanuit de keuken is het knusse buitenplaatsje bereikbaar, een fijne plek om buiten te zitten. Ook de badkamer is vanuit de keuken toegankelijk en beschikt over een douche, wastafelmeubel en een laaghangend toilet. Aan de achterzijde van de woning bevindt zich een berging, geschikt voor het plaatsen van de wasmachine en extra bergruimte.

Verdieping:

De overloop geeft toegang tot twee slaapruimtes van respectievelijk circa 12 m² en 5 m², gescheiden door een halve wand. Vanuit deze verdieping is het zonnige dakterras van circa 15 m², gelegen op het zuiden, bereikbaar.

OMGEVING

Helpman staat bekend als één van de meest geliefde woonwijken in het zuiden van Groningen. Op loopafstand van het appartement vind je het winkelcentrum van Helpman met een breed aanbod van winkels. In de nabije omgeving van het appartement bevinden zich diverse voorzieningen zoals (internationale) school, het Helperbad, een kinderdagverblijf en meerdere gezellige eetgelegenheden. Genieten van de natuur doe je in het Sterrenbos of in het nieuw aangelegde Zuiderpark. Je fietst ook zo naar het Paterswoldsemeer. De binnenstad van Groningen is makkelijk per fiets te bereiken en de uitvalswegen A7 en A28 bevinden zich op ongeveer 5 minuten.

ALGEMEEN

- Door de steeg naast de woning kun je gemakkelijk achterom komen
- Het betreft een karakteristiek pand. Een voordeel hiervan is dat een deel van het onderhoud subsidiabel is. Meer informatie hierover is te vinden op: https://www.provinciegroningen.nl/subsidies/cultuur/regulier-onderhoud-karakteristieke-panden-en-gemeentelijke-monumenten-sok-1/

Soort woning
Eengezinswoning
Perceeloppervlakte
66 m2
Woonoppervlakte
55 m2
Aantal kamers
3 kamers (2 slaapkamers)
Status
Beschikbaar
Aanvaarding
In overleg

Bouw

Bouwvorm
Bestaande bouw
Bouwjaar
1915
Bijzonderheden
Erfgoed
Soort dak
Zadeldak bedekt met pannen

Oppervlakten en inhoud

Gebouwgebonden buitenruimte
15 m2
Externe bergruimte
3 m2
Inhoud
183 m3

Indeling

Aantal woonlagen
2

Energie

Energielabel
G
Isolatie
Dubbel glas
Warm water
C.v.-ketel

Buitenruimte

Ligging
In woonwijk
Tuin
Plaats

Bergruimte

Schuur/berging
Aangebouwd hout

Parkeergelegenheid

Soort garage
Geen garage

Downloads

Documentatie per e-mail

Afspraak voor bezichtiging

Neem contact met ons op voor vragen of om een afspraak te maken voor bezichtiging

Maak een afspraak

Ja, ik wil graag een afspraak maken voor deze woning

Mijn gegevens

Gewenste datum voor afspraak

Mijn vraag of opmerkingen

Streetview

Contact

Adres

  • Verlengde Hereweg 20-2
    9722AC Groningen
  • Maandag t/m vrijdag
    9.00 uur t/m 17.30 uur